東京都も“改ざん”か 豊洲新市場「工事図面」に疑惑が浮上
国会は財務省の文書改ざん問題で大炎上中だが、移転問題で大揺れの東京都・豊洲市場でも、都の工事図面の“改ざん”疑惑が浮上した。
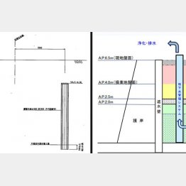
日刊ゲンダイは、都が土壌汚染対策工事に着工する直前の2011年6月に作成された「地下遮水壁に関する工事図面」を入手。遮水壁とは、敷地内の汚染地下…
この記事は有料会員限定です。
日刊ゲンダイDIGITALに有料会員登録すると続きをお読みいただけます。
(残り915文字/全文1,056文字)
【ログインしていただくと記事中の広告が非表示になります】
今なら!メルマガ会員(無料)に登録すると有料会員限定記事が3本お読みいただけます。


















